設計コンセプト
家を手に入れる目的は何でしょうか?私たちは「家族の幸せ」だと考えます。家族の絆を強くする家づくりは、楽しく心豊かな暮らしを実現します。
家族の絆を強くする家づくり

家は、単に寝食のための空間でないことは言うまでもありません。
家族が豊かな人生を送る場であることに存在価値があります。そして、夫婦関係、親子関係、家族関係を築く基盤として機能するという大きな役割があります。
一つ屋根の下、同じ空間で過ごす家族は日々のコミュニケーションを通じて絆を深め、協力し、助け合うことで人として成長していきます。
子どもは人を思いやること、友達を大切にすること、人として社会に役立つことを親から学びます。

人が最も幸せを感じるのはどんなときでしょうか?
それは大切な家族からの愛情が届き、心から満たされたときではないでしょうか。
そのために必要なのが、家族が自然とコミュニケーションを取って、絆を深めることができる空間づくりです。
私たちが家づくりのお手伝いをする先に見据えているのは、常に家族の幸せ。
設計コンセプトに「家族の絆を強くする家づくり」を掲げる理由はここにあります。
家族の気配を感じるオープンプランニング

家族の絆を深める基本はコミュニケーションです。
家族がお互いの気配をいつも感じられたり、話したいときにスムーズに会話がはじめられたりする空間づくりが、自然な交流につながります。
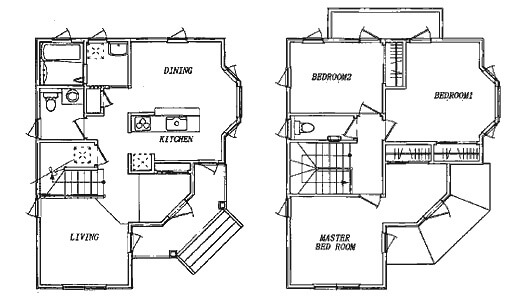
たとえば、リビング、ダイニング、キッチンなどを一つの連続した空間に構成します。
各部屋としての役割は保ちながら、間仕切りや扉は必要最小限にとどめて空間を細かく仕切らないことで、家族のコミュニケーションを重視したオープンプランニングとなります。
家族が集まるリビング

リビングは家族のコミュニケーションの中心となる大切な空間です。
オープンプランニングを基本とした空間づくりにより、家族は自然とリビングに集まり団らんを楽しみます。
2階へとつながる階段は、リビングから見えるところに配置します。
そうすることで、帰宅した子どもが自室へ向かうときに必ずリビングの前を通るようになり、親は子どもの帰りを知ることができます。
子どもが思春期の難しい時期を迎え、親を避けようとするときには、会話をしなくても普段の様子から心の変化を察することができます。

また、コミュニケーションの妨げとなる間仕切りや扉が少ないため、リビングにいる家族はいつでも容易にほかの家族に声をかけることができ、絆は自然と深まっていきます。
そして、家族の存在を常に感じることで安心していられます。
夫婦関係を一番に考える

健全な家族生活の真ん中にいるのは、何といっても夫婦です。
二人の良好な関係がなければ、家族の関係もうまくいきません。子どもたちは仲のいい親の姿を見て、人間関係のあり方を知ります。相手を思いやること、理解すること、気を配ることの大切さを学んでいくのです。
そのためには、夫婦にとって心地よい住まいが必要となります。寝室の配置を優先し、二人の絆と心地よさに配慮した間取りを考えることが重要です。
子どもはコミュニケーションの中で育つ

子どもは、社会の最小単位である家族から多くのことを学びます。
大きく成長していく過程で、家族とのコミュニケーションのあり方はとても重要だと言えます。我が子を一人前の大人として育てることが親の役割だと考える米国では、プライバシーを守るという理由で子どもに広い個室を与えることはありません。
子どもが育つ場所は、家族と一緒に過ごす空間だと考えるからです。
たとえば、お母さんがキッチンで食事の準備をしていると、子どもはすぐ横のダイニングテーブルで学校の宿題をします。お父さんが休みの日は、リビングで同じ時間を共有し、子どもは学校のことや友達のことなど日々の出来事を話します。自分の部屋にいるよりも、両親とふれあう方が楽しく大切であることを知り、たくさんの愛情を受けながら成長していくのです。
安城建築の考え方TOPへ
安城建築の考え方 次へ
安城建築の考え方 前へ