完成度の高い輸入思想住宅は、 探究心と誇りを持った技術者と職人の共演により実現されます 。

1.現場主義の現場監督

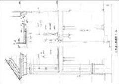
施工図をもとに職人へ作業を指示する現場監督

輸入思想住宅は外装部分に装飾を伴うことが多く、現場監督は装飾部分からの雨漏れ対策に充分配慮する必要があります。
そのため、現場監督は建築家(デザイナー)の指示書をもとに長期にわたるメンテナンスフリーを考え、施工図を描き、直接職人へ伝達します。

現場監督による施工図

いくら優秀な建築家や職人がいても、現場の指揮官である現場監督の能力によって家の完成度は大きく左右されます。

オーケストラでたとえるなら、現場監督は指揮者にあたります。

お客様が感動する家をおつくりすることが現場監督の務めです。設計図面の段階で、お客様はとてもワクワクしていらっしゃいます。
その大きな期待に応えるために、想像を超えるために、どんな仕事をするべきかを常に考えています。
「この家は、私が現場監督として責任を持ってつくりました」と何十年後も胸を張って言えること、そして「自分の家族の家」と思って愛情を込めてつくることが使命です。

2.現場主義の建築家

実際の収まり具合について職人に直接意見を聞く建築家


一般的な建築家は、自分の描いたデザインが忠実に再現されているかを気にします。
ワンランク上の建築家は、自分の描いたデザインに収まりが悪い部分はないかを職人に直接尋ねます。

3.インテリアコーディネーター

「招かれた人が『こんな家にいつか住みたいな』と思うような憧れの場所」をコンセプトにインテリアコーディネートをします。

インテリアのお手伝いを終えた際に、「これからも同じように、他のお客さんにも素敵なインテリアを提供してあげてください」と施主様から喜びの声が届けられたときは、とても嬉しかったとのこと。

インテリアをご提案する中で「こうしたら喜んでいただける」と想像するだけで凄く楽しいと言います。
その気持ちは、そのまま仕事の結果として表れることでしょう。
インテリアコーディネートについて

4.探求心と誇りを持った造作大工

「価値のある家をつくることが、志と誇りのある仕事を生む」

一般的に、アールの階段は工場であらかじめ組み立てたものを一旦解体し、現場にて再度組み立てます。
しかし、安城建築の階段は職人さんの手によってすべて現場でつくり上げられています。
無数の万力を使い、縦に薄くスライスされた手摺りを湾曲した3次元の形状に加工していきます。
万力を外すと微妙に開きますが、その開きは計算することができません。職人の神業です。

10代の頃から安城建築で大工として働き続けている岡山大工(上)・青山大工(下)





60年以上、大工仕事一筋。
普通であれば引退している年齢ですが、今でも動作や腕はまったく鈍っていません。
青山大工は「目の前の仕事を一生懸命するだけ」、岡山大工は「道具に触れていることが何よりも楽しい」。
生まれ変わっても大工にしかならないと思わせる二人です。

古い明治洋館の写真をもとに型作りし、再現された破風


この建物は昔の西洋館ではありません。
明治村の西洋館をモデリングして、ゼロからすべて復元した建物です。
写真をもとに電動彫刻刀で削り出された破風を見た瞬間、その完成度の高さに驚きを隠せませんでした。

インテリアコーディネーターのスケッチを もとに忠実に制作されたマントルピースと本棚


写真の家は、「インテリア全体のイメージをアダム様式にしてほしい」というお客様の希望から、すべてアダム様式に基づいてつくり込まれています。
インテリアコーディネーターと大工との共同作品です。

5.建て方大工

棟屋の棟木合わせ部分


本物の北米式ツーバイフォー工法は、日本のそれと大きく異なります。
そのため、北米式ツーバイフォーを熟知し、インチフィートのメジャーやアメリカ・カナダで使用されている関数電卓(コンストラクションコンピュータ)を自在に使いこなせるベテランの大工が必要となります。

一般的な家とはデザインが違うからこそ、図面から形につくり上げていく楽しさがあります。
お客様が現場を見に来てくれた際に、楽しそうな様子、喜んでくれている姿を目にすると、とても気持ちが乗ってきます。
しっかり仕事をしてよかったと思える瞬間です。見てもらえることは「信頼してもらっている」というやりがいにつながっています。

6.ドライウォール工法職人

ドライウォーラー夏目(左から弟、兄、甥)

ドライウォーラーという仕事に誇りを持っている夏目。その原点となった出来事があります。
それは、完成した家を見たお客様が涙を流すくらい感激してくれている姿を目にしたこと。
そのときから仕事に対する意識が変わりました。
以来、ただ仕事をこなすだけではなく、仕事の向こうにお客様がいることを忘れないように心がけているそうです。
ドライウォール工法について

7.電気職人

苦労して電気工事士の免許を取得した後、一番嬉しかったのは、自分で一から電気の配線をして、仕上げのときに室内に明かりが灯った瞬間でした。

家を建てるということは、お客様の夢をつくる仕事だと思って、日々の仕事に取り組んでいます。

8.板金職人

八角形の窓の枠を 一枚物の外装材から抜き取る

トップクラスの板金職人は、自らの仕事の収まりだけではなく、最終的にどのような外装色の塗り分けになるかまでを考えます。

美しい建築中現場


次に現場に入る塗装職人に迷惑がかからず、なおかつより美しく仕上がるように思いをめぐらせながら自分の仕事をしています。

板金職人の神業による 3次元の屋根

美しさと耐久性を兼ね備えるため、一つひとつの細かなパーツも可能な限りすべてメンテナンスフリーとなるように考えながら施工しています。

お客様からの「ありがとう」という言葉が一番のやりがい。
どんな場合でも綺麗な仕事をするのは当たり前。ただ黙々と仕事をするのは嫌で、お客様を喜ばせることを考えて一日の仕事をしています。
一生に一度の買い物の夢が現実になるのは、自分も嬉しいと思っているとのことでした。

9.断熱職人

この硬質ウレタン断熱材が、 冷蔵庫のような断熱性能と 地震時の建物剛性を 飛躍的に向上しています

高性能な断熱材であっても、吹き付けによって大きく性能が異なってきます。
断熱材を一度にたくさん吹き付けると発泡時に内部で割れが生じ、断熱材を厚く施工しても性能は上がりません。
同じ断熱材で施工しても、職人の技によって性能は簡単に変わってしまうのです。

機械の微調整を行う職人

現場発泡ウレタンは瞬時に数十倍に発泡するため、機械の微調整が難しいと言えます。
いい仕事をするべく、仕事を中断してでも納得がいくように、時間をかけて微調整とメンテナンスを行っています。
ウレタン遮熱工法の詳細はこちら

10.プロフェッショナルチーム

休憩時間中に外観デザインの細かな部分の収まりを話し合う職人たち

安城建築では決まった職人が施工を手がけるため、気心の知れた職人同士のコミュニケーションが円滑です。
お互いに気づかいが生まれ、自分が担当する仕事以外でも気になったことがあれば気軽に伝え合う環境です。
職種は違っても「誇りに思える家をつくり上げたい」という志は同じです。

自分の仕事には関係のない部分でも思わず収まりを一緒に考えます。

建築家と外装職人の話に加わる塗装職人。
現場では常にプロフェッショナルたちが一つ上のレベルの仕事を生み出していきます。

"本物"である8つの理由 TOPへ

"本物"である8つの理由 次へ

"本物"である8つの理由 前へ

10代の頃から安城建築で大工として働き続けている岡山大工(上)・青山大工(下)