ニューデザイン『イタリアンテ』現在進行中
大府市U様邸(イタリアンテ)の造り込みに入ります。ニューデザインであることと、奥様のお父様が芸術家であるため、お父様の期待を超える家にするためにも、特に慎重且つ念入りに準備をして参りました。おそらく外部の装飾品は過去最高となりそうです。
物静かだった奥様ですが、家づくりが始まると、同じ奥様だとは思えない程笑顔が増えた様に思います。
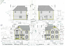
⇒現場監督が外装職人に渡した指示書の一部。(更に詳しい詳細図面も有)
この図面を基に外装が造り込まれていきますが、時には、一旦取り付けてもメンバー同士のシェアにより、更に美しく見える収まりがあれば、再度取り外して施工し直します。作品として残るため、より格好よく残したいというプライドからでしょう。
創業昭和四年 安城建築 浅井宏充